Trong bối cảnh thị trường bất động sản Hà Nội đang ngày càng khan hiếm nguồn cung căn hộ vừa túi tiền, dự án Nhà ở xã hội 393 Lĩnh Nam nổi lên như một giải pháp an cư lý tưởng cho người dân có thu nhập trung bình và thấp. Nằm tại số 393 Lĩnh Nam, phường Trần Phú, quận Hoàng Mai, Hà Nội, dự án không chỉ sở hữu vị trí chiến lược, mà còn được đầu tư xây dựng đồng bộ về hạ tầng và tiện ích.
Đây là một trong những dự án nhà ở xã hội trọng điểm của Hà Nội năm 2025, do Công ty Cổ phần Lilama (hoặc đơn vị liên kết) làm chủ đầu tư, với mục tiêu mang đến những căn hộ hiện đại, giá hợp lý, giúp nhiều gia đình trẻ và người lao động an cư lạc nghiệp ngay trong nội đô.
Với mức giá dự kiến từ 16 – 19 triệu đồng/m², Nhà ở xã hội 393 Lĩnh Nam được đánh giá là một trong những dự án có mức giá cạnh tranh, tạo điều kiện cho người dân tiếp cận giấc mơ sở hữu căn hộ tại thủ đô.
Vị trí dự án Nhà ở xã hội 393 Lĩnh Nam
Một trong những yếu tố quyết định giá trị của dự án chính là vị trí. 393 Lĩnh Nam nằm tại trục đường huyết mạch nối trung tâm thành phố với khu vực phía Nam.
Từ đây, cư dân dễ dàng kết nối đến:
-
Trung tâm quận Hoàn Kiếm: chỉ khoảng 6 km, di chuyển thuận lợi qua cầu Vĩnh Tuy hoặc cầu Chương Dương.
-
Khu đô thị Times City – Vinhomes Park Hill: liền kề, chỉ 5 phút đi xe, mang lại giá trị tiện ích vượt trội.
-
Bến xe Giáp Bát, bến xe Nước Ngầm: kết nối nhanh tới các tỉnh phía Nam.
-
Cao tốc Pháp Vân – Cầu Giẽ, Quốc lộ 1A: thuận tiện cho những người thường xuyên di chuyển đi công tác, làm việc ở ngoại thành.
Với vị trí này, dự án 393 Lĩnh Nam vừa thừa hưởng cơ sở hạ tầng hoàn thiện, vừa được hưởng lợi từ sự phát triển mạnh mẽ của quận Hoàng Mai – khu vực đang trở thành tâm điểm quy hoạch đô thị mới của Hà Nội.
Quy mô và thiết kế dự án nhà ở xã hội 393 Lĩnh Nam
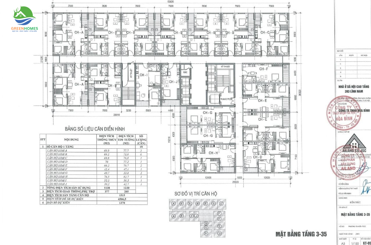
Dự án Nhà ở xã hội 393 Lĩnh Nam được quy hoạch trên diện tích hơn 5.000 m², gồm 2 tòa nhà cao 15 – 18 tầng với khoảng 500 – 600 căn hộ.
Cơ cấu căn hộ chung cư xã hội 393 Lĩnh Nam
-
Diện tích đa dạng từ 45 – 75 m²
-
Bố trí từ 1 – 3 phòng ngủ
-
Thiết kế tối ưu công năng, đảm bảo ánh sáng và thông gió tự nhiên cho từng căn hộ
Tiêu chuẩn xây dựng dự án 393 Lĩnh Nam
-
Kết cấu bền vững, đảm bảo an toàn phòng cháy chữa cháy theo quy định mới nhất
-
Hệ thống thang máy tốc độ cao, thang thoát hiểm riêng biệt
-
Khu để xe rộng rãi, đáp ứng nhu cầu của cư dân
Phong cách thiết kế căn hộ hướng tới sự tiện nghi, hiện đại và tối giản, phù hợp với nhu cầu của các gia đình trẻ cũng như người dân có thu nhập vừa phải.
Giá bán nhà ở xã hội 393 Lĩnh Nam và chính sách hỗ trợ
Theo thông tin ban đầu, giá bán nhà ở xã hội 393 Lĩnh Nam dự kiến dao động từ 16 – 19 triệu đồng/m². Với căn hộ khoảng 55 – 70 m², tổng giá trị căn hộ chỉ từ 900 triệu – 1,3 tỷ đồng.
Ngoài hình thức mua trực tiếp, chủ đầu tư còn đưa ra giải pháp thuê và thuê mua, giúp người dân có nhiều lựa chọn phù hợp khả năng tài chính.
Chính sách hỗ trợ vay vốn:
-
Ngân hàng hỗ trợ vay tới 70% giá trị căn hộ
-
Lãi suất ưu đãi dành cho nhà ở xã hội, ổn định trong 10 – 15 năm
-
Thủ tục nhanh gọn, điều kiện vay phù hợp với người có thu nhập ổn định
Đây là yếu tố quan trọng giúp nhiều hộ gia đình có thể dễ dàng sở hữu căn hộ tại dự án mà không bị áp lực quá lớn về tài chính.
Tiến độ thanh toán nhà ở xã hội 393 Lĩnh Nam
Tiến độ thanh toán của dự án được chia thành nhiều đợt linh hoạt, giúp khách hàng dễ dàng sắp xếp dòng tiền:
-
Đợt 1: Đặt cọc + 20% khi ký hợp đồng mua bán
-
Đợt 2: 15% khi xây dựng đến tầng 5
-
Đợt 3: 15% khi xây dựng đến tầng 10
-
Đợt 4: 20% khi cất nóc
-
Đợt 5: 25% khi nhận bàn giao nhà + 2% phí bảo trì
-
Đợt 6: 5% khi nhận sổ hồng
Với cách chia nhỏ từng đợt, khách hàng có thể chủ động hơn trong việc chuẩn bị tài chính.
Tiện ích nội khu và ngoại khu chung cư 393 Lĩnh Nam
Dự án Nhà ở xã hội 393 Lĩnh Nam được đầu tư chuỗi tiện ích đồng bộ:
Tiện ích nội khu
-
Khu sinh hoạt cộng đồng cho cư dân
-
Sân chơi trẻ em, đường dạo bộ, khuôn viên cây xanh
-
Bãi đỗ xe thông minh, hầm để xe rộng rãi
-
Siêu thị mini, cửa hàng tiện lợi ngay trong dự án
Tiện ích ngoại khu
-
Y tế: Gần Bệnh viện Thanh Nhàn, Bệnh viện Bạch Mai, Bệnh viện Vinmec
-
Giáo dục: Hệ thống trường mầm non, tiểu học, THCS và THPT trong bán kính 2 km
-
Thương mại – giải trí: Trung tâm thương mại Times City, Aeon Mall Long Biên, Vincom Megamall
-
Giao thông: Gần các tuyến xe buýt, tuyến metro số 3 (dự kiến) kết nối nhanh tới trung tâm
Với hệ thống tiện ích này, cư dân dự án sẽ được hưởng cuộc sống trọn vẹn, đầy đủ dịch vụ mà không cần phải đi xa.
Điều kiện mua nhà ở xã hội tại 393 Lĩnh Nam
Theo quy định, người mua nhà ở xã hội Hà Nội cần đáp ứng:
-
Có hộ khẩu hoặc đăng ký tạm trú dài hạn tại Hà Nội
-
Chưa sở hữu nhà ở, hoặc diện tích nhà ở bình quân dưới 10 m²/người
-
Có thu nhập trung bình hoặc thấp, thuộc diện được hưởng chính sách hỗ trợ nhà ở
-
Có giấy tờ chứng minh thu nhập, đảm bảo khả năng thanh toán
Hồ sơ mua nhà gồm:
-
Đơn đăng ký mua nhà ở xã hội
-
Giấy tờ nhân thân (CMND/CCCD, sổ hộ khẩu hoặc KT3)
-
Giấy xác nhận tình trạng nhà ở, thu nhập
-
Giấy xác nhận ưu tiên (nếu có)
Lợi thế của dự án nhà ở xã hội 393 Lĩnh Nam
-
Vị trí đắc địa – gần trung tâm, hạ tầng đồng bộ
-
Giá bán hợp lý – chỉ từ 16 triệu/m², rẻ hơn nhiều so với mặt bằng chung tại Hà Nội
-
Chính sách hỗ trợ vay vốn ưu đãi – giúp người dân dễ dàng sở hữu
-
Thiết kế hiện đại, diện tích đa dạng – phù hợp nhiều nhu cầu khác nhau
-
Tiện ích đầy đủ – đáp ứng mọi nhu cầu sống, học tập, vui chơi, làm việc
-
Pháp lý minh bạch – dự án được phê duyệt bởi Sở Xây dựng Hà Nội
10 câu hỏi thường gặp về dự án 393 Lĩnh Nam
1. Giá bán nhà ở xã hội 393 Lĩnh Nam bao nhiêu?
→ Dự kiến từ 16 – 19 triệu đồng/m².
2. Khi nào mở bán?
→ Dự kiến cuối năm 2025, tùy tiến độ xây dựng và phê duyệt.
3. Có được vay ngân hàng không?
→ Có, ngân hàng hỗ trợ vay tới 70% giá trị căn hộ.
4. Hồ sơ đăng ký mua gồm những gì?
→ Đơn đăng ký, giấy tờ nhân thân, giấy xác nhận thu nhập, tình trạng nhà ở.
5. Ai được mua nhà ở xã hội?
→ Người có thu nhập trung bình và thấp, chưa có nhà ở hoặc diện tích nhà ở chật hẹp.
6. Dự án có bao nhiêu căn hộ?
→ Khoảng 500 – 600 căn.
7. Diện tích căn hộ ra sao?
→ Từ 45 – 75 m², bố trí 1 – 3 phòng ngủ.
8. Bao giờ nhận nhà?
→ Dự kiến bàn giao từ 2027.
9. Có được cho thuê lại nhà ở xã hội không?
→ Trong 5 năm đầu không được phép bán, cho thuê lại.
10. Dự án có tiện ích gì nổi bật?
→ Có sân chơi, khu sinh hoạt cộng đồng, siêu thị mini, gần Times City, Vincom.
Nhà ở xã hội 393 Lĩnh Nam là dự án hiếm hoi tại khu vực nội đô Hà Nội cung cấp giải pháp an cư chất lượng với mức giá phù hợp. Với vị trí chiến lược, tiện ích đầy đủ, chính sách vay ưu đãi và tiến độ thanh toán linh hoạt, đây là cơ hội lớn cho người dân thu nhập trung bình và thấp hiện thực hóa ước mơ sở hữu căn hộ tại thủ đô.
Nếu bạn đang tìm kiếm một dự án nhà ở xã hội Hà Nội 2025 uy tín, hợp túi tiền, thì 393 Lĩnh Nam chắc chắn là lựa chọn đáng cân nhắc.
Tham khảo thêm :
Danh sách các dự án nhà ở xã hội tại Hà Nội sắp mở bán
Danh sách chung cư tại Hà Nội mới nhất
Quyền miễn trừ trách nhiệm: Các thông tin về Nhà ở xã hội 486 Ngọc Hồi được Green Homes cập nhật trên internet nên chỉ mang tính chất tham khảo, đây không phải là thông tin chính thức từ chủ đầu tư.
Greenhomesland.vn chỉ cung cấp thông tin, KHÔNG TƯ VẤN – KHÔNG MUA BÁN NHÀ Ở XÃ HỘI. Quý Khách hàng liên hệ trực tiếp CHỦ ĐẦU TƯ hoặc SỞ XÂY DỰNG để được hỗ trợ chính thức.










